39 Queens Row

Summary

Type
To Let
Size
To Let
0000
£
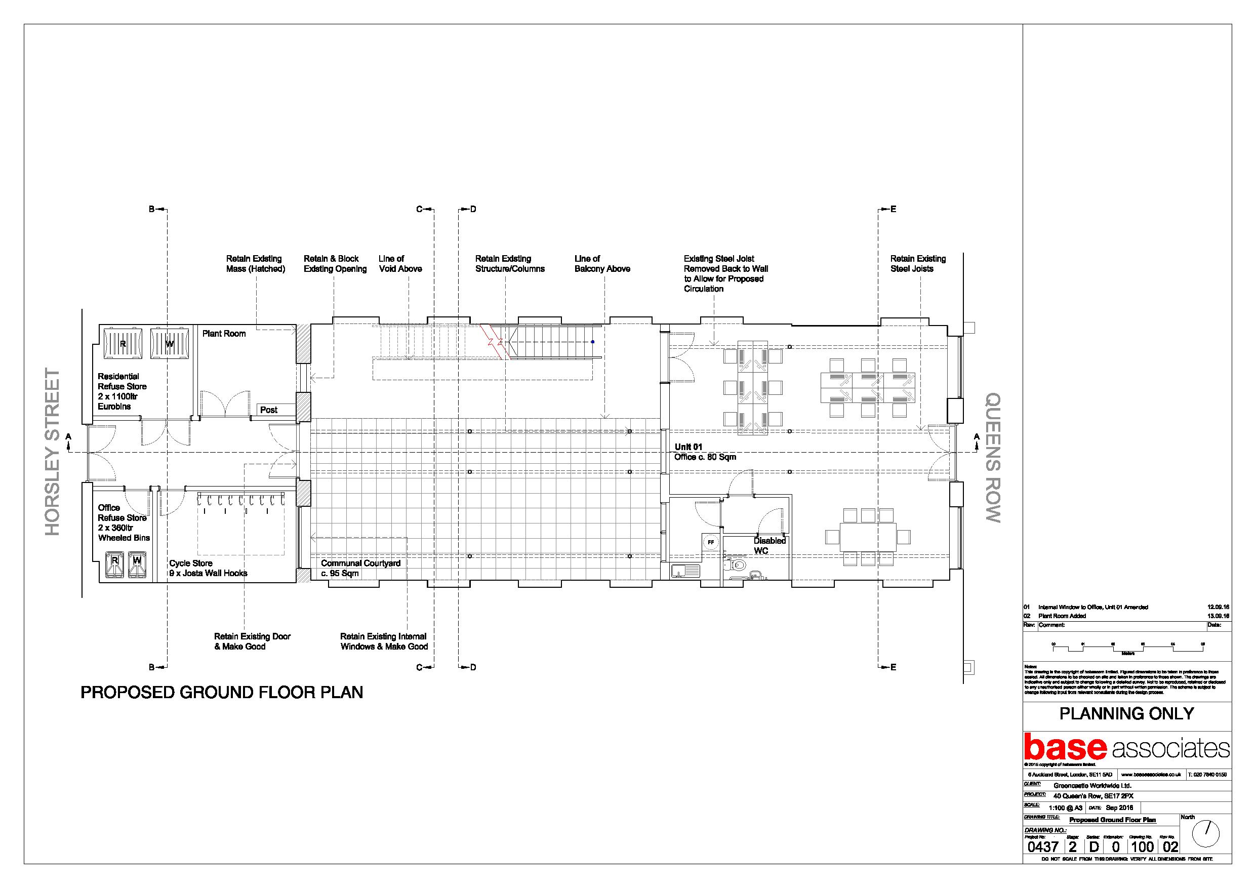
Floor Plan
Flexible Ground Floor Commercial E Class Unit To Let

Description

Flexible E Class premises available within this refurbished former warehouse mixed commercial and residential development. Self-contained characterful open plan space arranged on ground floor with prominent frontage and generous ceiling height. The property is E Use Classification, meaning it can be used for a number of purposes such as showroom, office, workshop, retail, medical and gym use.

Location

Located just off the busy Walworth Road/Camberwell Road. The surrounding area is predominantly residential and there are numerous bus routes running along the Walworth Road, providing easy access to Elephant & Castle and onto to London Bridge or Waterloo.

Specification

• Exposed brick • Generous ceiling height • Good natural light • Frontage • Solid concrete floor • W.C. and kitchen • Flexible E Class Use

Terms

The property is offered to let by way of a new lease on terms by negotiation. RENT £25,000 per annum, exclusive of all outgoings. The premises is not subject to VAT.

Viewing

Please contact us on 020 7234 9639 if you wish to arrange a viewing appointment for this property, or require further information.

Energy Performance Certificate

Click here to view the Energy Efficiency Rating and Environmental Impact Rating for this property.

Disclaimer

Field and Sons Commercial endeavour to maintain accurate depictions of properties in Virtual Tours, Floor Plans and descriptions, however, these are intended only as a guide and purchasers must satisfy themselves by personal inspection.

Book a Viewing

Ready to see this property in person? Schedule a viewing at your convenience and let our experienced team show you everything this space has to offer. Simply fill out the form below with your preferred time and any specific requirements, and we'll be in touch within 24 hours to confirm your appointment.

About you
You Contact Details
Viewing Information
By submitting this form, you agree that we may contact you about your enquiry using the details you have provided.
Thank you! Your submission has been received!
Oops! Something went wrong while submitting the form.
Client Stories

With more than 30 years experience in commerical property, we've helped hundreds of clients find their ideal property. Discover what is is like to work with us: