51-53 Southwark Street

Summary

Type
To Let
Size
To Let
0000
£
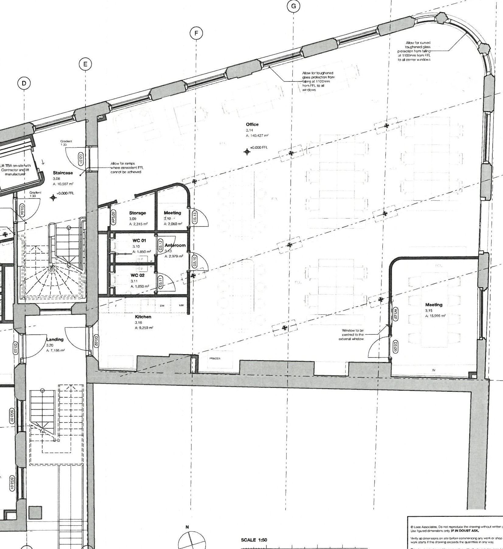
Floor Plan
The Menier Building Last Remaining Refurbished Office Suite To Let

Description

Once a chocolate factory, The Menier Building now offers inspiring office space for companies seeking a unique and individual environment. An elegant brick and stone façade opens to reveal a soft centre. Light filled offices encourage informal gatherings, exchange of ideas, social cohesion and a vibrant creative atmosphere. The Menier Building has undergone a comprehensive but sensitive refurbishment to provide modern office space with high functionality and comfort, whilst retaining all charm and character of this truly special property. A wealth of original features have been retained from its striking classic London brickwork, large wooden beams, robust cast iron columns and huge sash windows. Last remaining suite Third Floor East = 1,841 sq ft (171 sq m).

Location

Prominently located on Southwark Street in the rejuvenated Bankside area the premises are perfectly nestled between some of London’s top attractions including The Shard, Borough Market and the Thames. Excellent transport links with London Bridge Station minutes away giving access to mainline rail and Underground services (Jubilee and Northern lines, together with numerous bus routes in all directions while cycle lanes have been prioritised to make the pedalling commute ideal.

Specification

- Air conditioning throughout - New passenger lift - Smart DALI LED lighting - Fresh air supply and extraction - Excellent ceiling height - Communal terrace garden - Cycle spaces - Showers and lockers - Newly fully refurbished

Terms

New lease direct on terms by negotiation. Rent £138,075 per annum, exclusive. VAT applicable.

Viewing

Please contact us on 020 7234 9639 if you wish to arrange a viewing appointment for this property, or require further information.

Energy Performance Certificate

Click here to view the Energy Efficiency Rating and Environmental Impact Rating for this property.

Disclaimer

Field and Sons Commercial endeavour to maintain accurate depictions of properties in Virtual Tours, Floor Plans and descriptions, however, these are intended only as a guide and purchasers must satisfy themselves by personal inspection.

Book a Viewing

Ready to see this property in person? Schedule a viewing at your convenience and let our experienced team show you everything this space has to offer. Simply fill out the form below with your preferred time and any specific requirements, and we'll be in touch within 24 hours to confirm your appointment.

About you
You Contact Details
Viewing Information
By submitting this form, you agree that we may contact you about your enquiry using the details you have provided.
Thank you! Your submission has been received!
Oops! Something went wrong while submitting the form.
Client Stories

With more than 30 years experience in commerical property, we've helped hundreds of clients find their ideal property. Discover what is is like to work with us: