122 Minories

Summary

Type
To Let
To Let
To Let
Size
To Let
0000
£
To Let
0000
£
To Let
0000
£
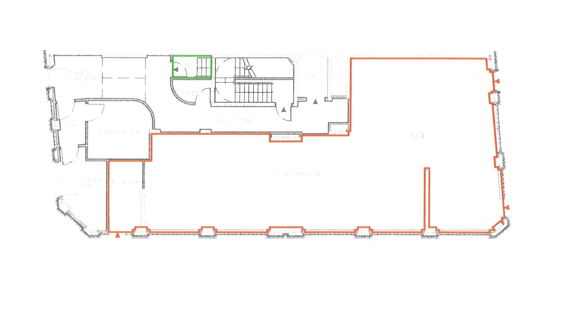
Floor Plan
New Retail / E-Class Unit To Let With Return Corner Frontage

Description

Fortress House is a new 7 storey prominent corner mixed use development, comprising this ground floor commercial space and 17 apartments in the floors above The unit is arranged as an open plan ground floor space with the extensive return corner frontage. The premises would be suitable for a variety of retail uses under E Class, in particular coffee shop or non-cooking food type operators. To be finished to a ‘shell & core’ specification, with all glazing installed. Capped utilities will allow any new occupier to complete a final fit out to their own specification.

Location

New retail unit located on the corner of Minories and Crosswall, moments from America Square. The premises is very well located for various underground stations being within a short walk of Tower Hill (Circle and District Lines plus DLR), Aldgate (Circle and Metropolitan Lines) and also Fenchurch Street Rail station. The prominent corner position serves the local office, hotel and residential community with the wrap- around frontage covering both Minories and Crosswall making it a very active part of the local shopping, leisure, hospitality professional services in the immediate surrounding area. Other nearby occupiers include Starbucks, Pret a Manger as well as various other bar, restaurant and leisure outlets.

Specification

The property is offered to let by way of a new lease on terms by negotiation. RENT £107,380 per annum, exclusive of all outgoings. VAT applicable.

Terms

Viewing

Please contact us on 020 7234 9639 if you wish to arrange a viewing appointment for this property, or require further information.

Energy Performance Certificate

Click here to view the Energy Efficiency Rating and Environmental Impact Rating for this property.

Disclaimer

Field and Sons Commercial endeavour to maintain accurate depictions of properties in Virtual Tours, Floor Plans and descriptions, however, these are intended only as a guide and purchasers must satisfy themselves by personal inspection.

Book a Viewing

Ready to see this property in person? Schedule a viewing at your convenience and let our experienced team show you everything this space has to offer. Simply fill out the form below with your preferred time and any specific requirements, and we'll be in touch within 24 hours to confirm your appointment.

About you
You Contact Details
Viewing Information
By submitting this form, you agree that we may contact you about your enquiry using the details you have provided.
Thank you! Your submission has been received!
Oops! Something went wrong while submitting the form.
Client Stories

With more than 30 years experience in commerical property, we've helped hundreds of clients find their ideal property. Discover what is is like to work with us: